
di Carlo Torregrossa
La città di Macerata è fortemente legata con l’Università nata nel 1290.
Entrambe le realtà, quella universitaria e quella del territorio sono da sempre strettamente connesse. Grazie agli otto cantieri portati avanti dall’ateneo maceratese, saranno molte le zone della città riqualificate e, si spera, popolate da ragazze e ragazzi, un esempio è il nuovo auditorium di Villa Lauri che sorgerà di fianco all’Istituto Confucio. Istituto che rappresenta un ponte tra la cultura cinese e quella italiana, famoso tra le altre cose per organizzare il celebre Capodanno cinese, che da anni anima Macerata.
Così l’Università trasforma la città e la rende più fruibile anche ai giovani e alle giovani.

La visita ai cantieri assieme al Rettore John McCourt, il direttore generale Domenico Panetta e il dirigente Divisione acquisizioni, edilizia e servizi IT, Francesco Ascenzi, hanno donato uno sguardo sulla situazione degli otto cantieri avviati dall’Università di Macerata «Molti spazi per i ragazzi sono utili anche per svagarsi – afferma il rettore John McCourt -. Questo migliora il benessere delle studentesse e degli studenti ma anche gli spazi, che sono a disposizione della città».
Non solo offrire nuovi spazi ma crearli da edifici già esistenti, occupando anche «meno suolo possibile – afferma il dirigente Francesco Ascenzi – andando incontro ad un’ idea di sostenibilità, sicurezza e recupero, creando una vera e propria ibridazione tra Università e la Città di Macerata».
I cantieri doneranno alla città l’auditorium, che sorgerà a Villa Lauri, che ospiterà 170 posti, un campetto con 300 posti a sedere utile anche per ospitare importanti competizioni sportive di basket, calcio a 5 e pallavolo, ma anche un campo da tennis e due palestre, creando il nuovo Centro universitario sportivo (Cus)
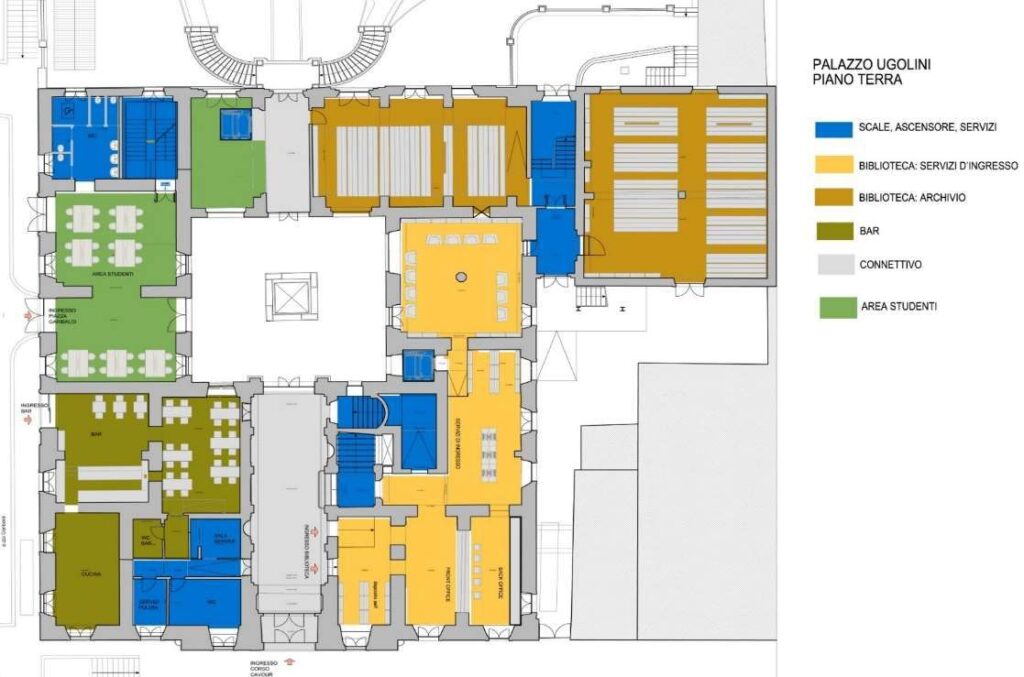
Tra i tanti cantieri c’è anche quello di Palazzo Ugolini, la sede del Dipartimento di Lettere e Mediazione linguistica dell’Università, edificio nel quale sorgerà anche il nuovo bar di Piazza Garibaldi.
Ma il progetto più ambizioso dell’Università di Macerata è la riqualifica del ex Palazzo della Banca D’Italia, nel quale presto sorgerà al piano terra, li dove prima erano situati gli sportelli della banca, la nuova segreteria studenti dell’Università, dove l’Ateneo accoglierà tutte gli studenti e le studentesse che cercano informazioni riguardo a corsi di studio, esami ed altro. Li ospiterà all’interno di un edificio molto evocativo con porte di legno, vetrate sui soffitti e anche qualche affresco. 
Questi sono solo alcuni degli interventi portati avanti dall’Università di Macerata per migliorare non solo gli spazi messi a disposizione delle studentesse e degli studenti ma anche per riqualificare il territorio, creando spazi sempre più accessibili e per stare insieme.

















